1. Sécurité décoffrage:
Pour assurer la stabilité en phase chantier, en complément des autres dispositions constructives, les recommandations sont les suivantes:
Décoffrage au jeune âge du béton (résistance à la compression du béton est supérieure à 1.5 MPa).
La résistance au jeune âge et la stabilité de la paroi extérieure est assurée notamment par l’utilisation des connecteurs plastiques qui permettent de:
- Limiter l’élancement du voile extérieure à des valeurs inférieures aux valeurs traditionnelles. La répartition des connecteurs plastiques à un taux mini de 1 par m2 entraine une hauteur de flambement du voile extérieure de 1 m. Pour une épaisseur de 8cm, l’élancement est alors de 13, ce qui est inférieure à l’élancement d’un voile traditionnel.
- Assurer l’accrochage de la paroi extérieure au mur intérieur et ainsi de résister aux efforts hors plan avant la liaison effective par les épingles inoxydables. L’annexe XX présente la vérification que la résistance aux efforts dus au vent est assurée après décoffrage si la résistance à la compression du béton est supérieure à 1.5 MPa.
Les connecteurs plastiques jouent ainsi un rôle essentiel dans la stabilité de la paroi extérieure au jeune âge et pour la sécurité des travailleurs.
- Pose des passerelles de sécurité :
Le béton doit permettre d'assurer une résistance à la compression de calcul de 13MPa au moment de la pose des passerelles de l'étage supérieur;
L’équivalent d’un treillis ST25C (soit 2.57 cm²/m par direction) doit être positionné à la fibre moyenne de la paroi extérieure ; cas d’une charge d’appui des jambes de force des passerelles de chantier de 5 kN/m, un taux de vide (ouvertures) de 50 % et une hauteur inférieure ou égale à 180 cm entre les entretoises situées immédiatement en-dessous et au-dessus des barres d’appui des passerelles. Une justification est jointe en Annexe qui détaille la façon dont les charges de chantier (poids de passerelles) sont évaluées et puis appliquées sur les parois.
La stabilité du voile extérieur est assurée en phase provisoire par la liaison rigide créée par les entretoises plastiques.
- Mise en place d'une entretoise de réservation lors du coffrage du voile pignon du niveau 1.

- Après décoffrage du pignon niveau 1, mise en place des crochets supportants la plate-forme dans la réservation en tête de voile.

- Réalisation de la dalle niveau 2
- Elingage de la plateforme de pignon.

- Démontage des crochets supports.

- Remontée de la plateforme. Récupération des crochets supports. Accrochage de la cablette des crochets supports sur la plateforme.

- Remise en place de la plateforme sur les crochets supports, à l'étage supérieur.

- Coffrage du voile de pignon. Bétonnage et reprise du cycle au niveau supérieur.

Observations: Toujours se référer aux prescriptions des fabricants de passerelles et banches. Désignation d'un responsable de manoeuvre pour donner les ordres au grutier.
2. Retrait des banches
- Mettre en place les blocs stabilisateurs pour le train de banches du cycle suivant.
- Desserrer les réglettes d’about de banche.
- Desserrer les tiges de serrage.
- Désaccoupler les banches si les moyens de levage l’obligent.
- Desserrer les étais pied de banche.
- Le premier train de banches à décoffrer est celui qui a été fermé en dernier.
- Quand le train de banches est stabilisé face à face par des étais à curseur, le décoffrage et le déplacement se font par des élingues à 2 brins égaux. (capacité de levage maxi : 3T par brin).
- Quand le train de banches est stabilisé face à face par auto stabilisateur, le décoffrage et le déplacement se font à l’aide d’un palonnier écarteur. »
- Décoffrer d’abord une banche extérieure puis assurer le maintien avant de retirer la suivante.



- Veiller à la désolidarisation totale du mur coulé avec les banches :
- Pour les banches métalliques, retirer les tiges et les aimants
- Pour les banches bois, retirer les coins et fixations mécaniques (clous, vis...)
- Veiller à la stabilisation totale du mur béton avant décoffrage complet.
- Décoffrer les mannequins et les réservations.
Observations: Toujours stabiliser le mur avant décoffrage complet.
3. Comportement sous charges de construction
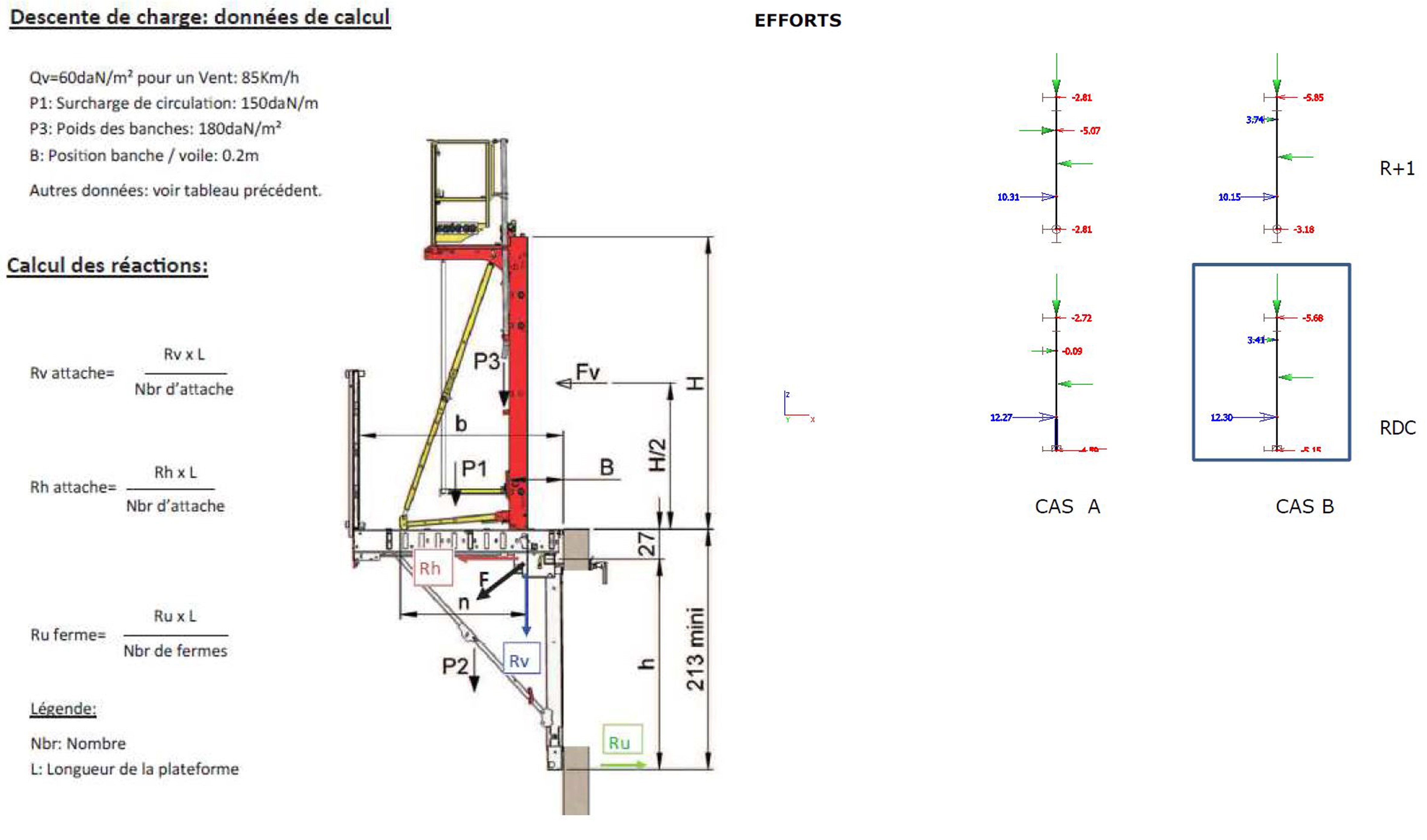
Le mur réalisé selon le Procédé GBE® est modélisé comme une poutre de dimensions 1000 x 80 mm², elle est appuyée en pied et au niveau des entretoises plastiques.
Deux configurations sont étudiées afin de déterminer le moment maximal produit par l’appui des passerelles consoles en phase chantier:
- Cas A - passerelle console appuyée sur entretoise au niveau des tiges de serrage
- Cas B - passerelle console appuyée sur entretoise positionnée en tête de voile
La portée libre est légèrement supérieure dans le cas B (1.8 m).
Le calcul est réalisé pour un béton ayant une résistance de calcul à 7 jours Fcd = 13.3 MPa, (il convient d’appliquer un coefficient de sécurité 1.5 à Fck = 20 MPa pour obtenir la résistance de calcul).
Nous considérons l’appui du mur comme un point rigide dans le cas du RDC, il devient une rotule à partir du R 1. De plus la force horizontale de 5 kN s’exerçant sur la paroi est doublée afin de tenir compte d’une non continuité de la zone d’appui de la paroi (ouverture pour fenêtre par exemple). Elle est donc de 10 kN dans cette étude.


Fig. 1 : Configurations de calcul de la paroi extérieure en phase chantier
Les données de calculs pour la descente des charges des passerelles de chantier sont issues de la documentation technique PTE SATECO 2 (voir fig. 2 ci-dessous).
La force maximale appliquée sur les entretoises plastiques en phase provisoire est d’environ 12.3 kN (voir fig. 3). La résistance maximale obtenue lors des tests mécaniques réalisés sur les entretoises est de Nmax = 32 kN (voir § 3.1 du rapport d’essais mécaniques du Procédé GBE®), soit une valeur de résistance de calcul de NRd = Nmax / 1.5 = 21 kN inférieure à la force sollicitante.

Fig.2: Descente de charges passerelle de chantier / Fig. 3: Réactions Rx dans la paroi extérieure en phase chantier
4. Finitions des trous de banches
- Retirer les embouts (Figure B - orange) des entretoises sauf aux endroits où les entretoises sont destinées à recevoir les passerelles de sécurité.
- Protéger le mur du bidim avant de montrer les passerelles.


- Reboucher les trous laissés par les entretoises avec :
- De l’isolant type de la mousse polyuréthane pour assurer la continuité de l’isolation
- Du pare-béton, sur la paroi extérieure. Il varie selon la couleur du mur.
- Pour la paroi extérieure, des bouchons collés en béton fabriqués dans des moules spécifiques en fonction de la couleur du béton
- Du mortier ou du pare-béton pour la paroi intérieure.
- Passage au cycle suivant.
- Nettoyer et huiler les faces coffrantes.

Observations : Arrêt de travail en cas de grand vent